Marklägenhet med uteplats i söderläge!

Main image

Hamnallén 11

Lomma

Marklägenhet med uteplats i söderläge!

Välkommen till denna stilrena och välplanerade gavellägenhet om 99 kvm, belägen i populära Brf Riggen i hjärtat av Lomma Strandstad. Bostaden är nyproducerad och har tidigare endast använts som visningslägenhet av JM. Här flyttar du in i ett hem som känns helt nytt!

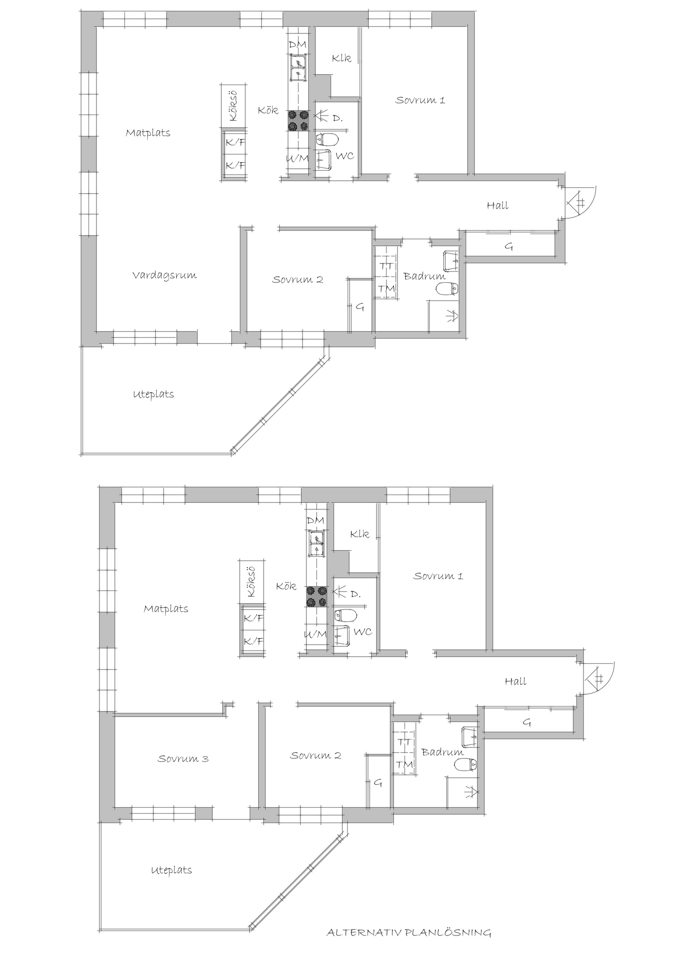
Planlösningen disponeras idag som 3 rok men kan enkelt återställas till 4 rok för den som önskar fler rum (se alternativ planlösning). Det trevliga ljusinsläppet från fönster i tre väderstreck skapar ett hem fyllt av rymd och harmoni.

Köket från Vedum med vitvaror från Siemens. Dubbla helkaklade badrum med inredning från INR, utrustat med tvättmaskin och torktumlare. Förvaring i skjutdörrsgarderob med inredning från Elfa. Detaljer som vitlaserade ekgolv, integrerade vitvaror och genomgående hög standard ger bostaden en exklusiv känsla.

I månadsavgiften ingår uppvärmning, kallvatten samt föreningens allmänna renhållning.

Brf Riggen är en modern förening med attraktivt läge i Lomma Strandstad, med kanalen och Kanaltorget som närmaste granne. Här bor du med närhet till både havet, småbåtshamnen, caféer och promenadstråk.

Varmt välkommen på visning!

Bostadsinfo
Pris
5 300 000 kr
Pristyp
Utgångspris
Månadsavgift
6 210 kr/mån
Ingår i avgift
I månadsavgiften ingår uppvärmning, kallvatten och allmän renhållning i föreningen.
Antal rum
3
Sovrum
2
Boarea
99 m²
Våning
1 av 4
Hiss
Ja
Byggnadsår
2024
Boendeform
Bostadsrätt
Tillträde
Enligt överenskommelse
Ansvarig Fastighetsmäklare
Profile Image
Rebecca Bernspång
Reg. Fastighetsmäklare
+46706-583500
Extra kontaktperson
Profile Image
Anna Eriksson
Fastighetsmäklare
+46732-39 99 00
+4646-211 71 30

Alla bilder

Matplats

Vardagsrum

Uteplats

Vardagsrum/Matplats

Vardagsrum

Kök

Kök

Kök

Sovrum

Sovrum

Hall

Gäst wc med dusch

Badrum med tvätt

Uteplats

Rumbeskrivning

HALL - Bra förvaring med plats för avhängning i skjutdörrsgarderob. Parkettgolv och vita väggar.
BADRUM - Helkaklat badrum som är utrustat med wc, dusch, handfat med kommod, förvaringsskåp, tvättmaskin och torktumlare. Grå klinker och vitt kakel.
SOVRUM 1 - Generöst till ytan med bra förvaring i skjutdörrsgarderob som har extra djup. Parkettgolv och vita väggar.
WC/DUSCH - Helkaklat med wc, dusch och handfat med kommod. Grå klinker och vitt kakel.
SOVRUM 2 - Passar bra som hemmakontor, barnrum eller gästrum. Förvaring i skjutdörrsgarderob. Parkettgolv och vita väggar.
VARDAGSRUM - Generös yta med utgång till uteplats. Fönster i tre väderstreck tack vare lägenhetens läge på husets gavel. Parkettgolv och vita väggar.
KÖK - Fullt utrustat kök från Vedum med vita luckor och grå bänkskiva. Här finns spishäll, köksfläkt, ugn, mikro, diskmaskin och dubbel kyl/frys. Smarta förvaringslösningar som underlättar i vardagen.
UTEPLATS - Bostadens uteplats vetter mot föreningens trevliga innergård. Här finns plats för möblemang och plantering i krukor.

Byggnad

Riggens byggnader stod färdigställda 2025.

Allmän information

I Riggen i Lomma Strandstad har JM byggt 79 st lägenheter om 2–4 rok. vackert belägna vid Hamnallén och det nya Kanaltorget. Det är allt från effektiva tvårummare med söderbalkong till vindsvåningar och penthouselägenheter med stora takterrasser. Kvarteret erbjuder dessutom 17 stilfulla gathus med egen entré från gatan och privat trädgårdstäppa/uteplats mot den gröna gården eller mot kanalen. Lomma Strandstad erbjuder ett attraktivt boende för alla åldrar. Den marina, strandnära miljön är unik med sin mix av båtliv, strandhäng, restauranger och moderna, småskaliga bostadskvarter. Den skyddade kvartersgården utformas för att vara de boendes gemensamma uteplats med bänkar, sittgrupper och en lummig pergola. På gården finns vackra planteringar med bland annat träd, blommor och kryddörter. Här finns också lekytor med utrustning för barnen. Här finns bra service och skolor för barnen på nära håll. Strategiskt bor du också bra, mitt i den dynamiska Öresundsregionen. Med bil, tåg eller buss tar du dig smidigt till arbetsplatser i Malmö och Lund. Även Helsingborg och Köpenhamn ligger på bekvämt pendelavstånd. Söder om Riggen ligger det vackra Kanaltorget med skuggande träd, lekytor, planteringar och trädäck som inbjuder till en paus vid kanalkanten. Sjösätt din kajak eller SUP från den lilla hamnen eller utmana grannarna på rundpingis.

Övrigt

Köparen uppmanas att om det är av stor vikt för honom/henne, kontrollera bostadens boarea samt biarea före köpet som ett led i sin undersökningsplikt.

Vi samarbetar med Handelsbanken i denna överlåtelse
Kontakta gärna nedanstående bolånerådgivare för finansieringsförslag:
Handelsbanken Lomma - Denise Andersson denise.andersson@handelsbanken.se 040-368582
Handelsbanken Lomma - Lotta Rudberg lotta.rudberg@handelsbanken.se 040-368585

Fakta
Byggnadstyp
Bostadsrätt
Område
Lomma Strandstad
Gatuadress
Hamnallén 11
Postnummer, ort
234 40 Lomma
Lägenhetsnummer
121003
Lägenhetsnummer LM
1003
Boarea(BOA)
99 m²
Boareauppgifter enligt
Bostadsrättsföreningen
Beskrivning av förråd
Ett källarförråd tillhör lägenheten.
Antal rum
3
Antal sovrum
2
Möjlighet antal sovrum
3
Andelstal
1,1529%
Andelstal kommentar
Lägenhetens andel av föreningens nettoskuldsättning uppgår till 1.487.200 kr enligt ekonomisk plan.

Kostnader

Överlåtelseavgift
1 480 kr
Överlåtelseavgift betalas av
Köpare
Pantsättningsavgift
592 kr
Månadsavgift
6 210 kr/mån
Beskrivning av kostnader som ingår i avgiften
I månadsavgiften ingår uppvärmning, kallvatten och allmän renhållning i föreningen.
Beskrivning Månadsavgift
Tillkommande kostnader är obligatorisk tillägg för Telia Triple play om 230kr/månad. Föreningen har individuell avläsning av hushållsel och varmvatten där medlemmarna debiteras efter faktisk förbrukning. Beräknad kostnad för el är 403 kr/mån och för varmvatten 380 kr/mån enligt Ekonomisk plan.
Boendekostnadskalkyl
Välkommen att kontakta ansvarig fastighetsmäklare om du vill ha hjälp med att upprätta en boendekostnadskalkyl.

Parkering

Parkeringsbeskrivning
Gemensamt garage finns i källaren under huset med 105 platser (varav 3 handikapplatser, 60 ladd-platser samt 2 p-platser med dubbelt djup (två bilar kan parkeras efter varandra)) samt 8 mc-platser. 5 utomhusparkeringar (varav 1 handikapplats och 2 ladd-platser) i anslutning till radhusen vid Kanaltorget. - Garageplats, ca 1200 kr/mån - El-plats i garaget, ca 1500 kr/mån + förbrukning - P-plats med dubbelt djup (finns 2 st), ca 1800 kr/mån - Utomhusplats vid Kanaltorget, 1200 kr/mån utan laddbox och 1150 kr/mån med laddbox + förbrukning - MC-platser, ca 600 kr/mån

Bostadsrätt

Namn på Brf
Brf Riggen i Lomma
Org.nr
769641-5582
Markägare
Föreningen äger marken

Byggnad

Byggår
2024
Hiss
Ja
Upplåten mark
Uteplatsen/marken är upplåten med bostadsrätten (ingår i bostadsrätten)
Övriga utrymmen i föreningen
- Gästlägenhet finns att hyra för medlemmarna. - Cyckelförvaring på innergården samt i källaren. - Rullstols- och barnvangnsförråd finns i källaren.
TV/internet
Kabel-TV och bredband via Telia, obligatoriskt tillägg 230 kr/mån.

Energideklaration

Energistatus
Energideklaration är utförd
Energideklaration utförd
2025-02-05
Energiklass
B
Specifik energianvändning
57 kWh/m²
Energiprestanda
53 kWh/m²

Du använder en föråldrad webbläsare. Alla funktioner fungerar inte i din webbläsare. Var vänlig uppgradera din webbläsare för att förbättra din upplevelse och öka din säkerhet.