Genomgående tvåa med fantastisk utsikt!

Main image

Brunnshögsgatan 56

Lund

Välkommen till Brf Pärlan i Lund och denna välplanerade tvårummare med balkong. Ytan fördelas smart över hall, sovrum, badrum, klädkammare och ett härligt kök/vardagsrum. Rymden är generös och med stora fönsterpartier förstärks den luftiga känslan. Bostaden är utrustad med alla bekvämligheter man kan önska i form av modernt kök, tvättmöjlighet i badrummet och bra förvaring. Stilrena materialval med parkettgolv och klinker i hallen. Det fria läget högt upp med utsikt över Nobelparken är väldigt tilltalande. Detta är en perfekt lägenhet för den som söker ett bekvämt boende med närhet till goda kommunikationer, närservice och ett trivsamt bostadsområde.

Varmt välkommen på visning!

Bostadsinfo
Pris
2 195 000 kr
Pristyp
Utgångspris
Månadsavgift
2 992 kr/mån
Antal rum
2
Boarea
45 m²
Byggnadsår
2024
Boendeform
Bostadsrätt
Tillträde
Enligt överenskommelse
Ansvarig Fastighetsmäklare
Profile Image
Rebecca Bernspång
+46706-583500

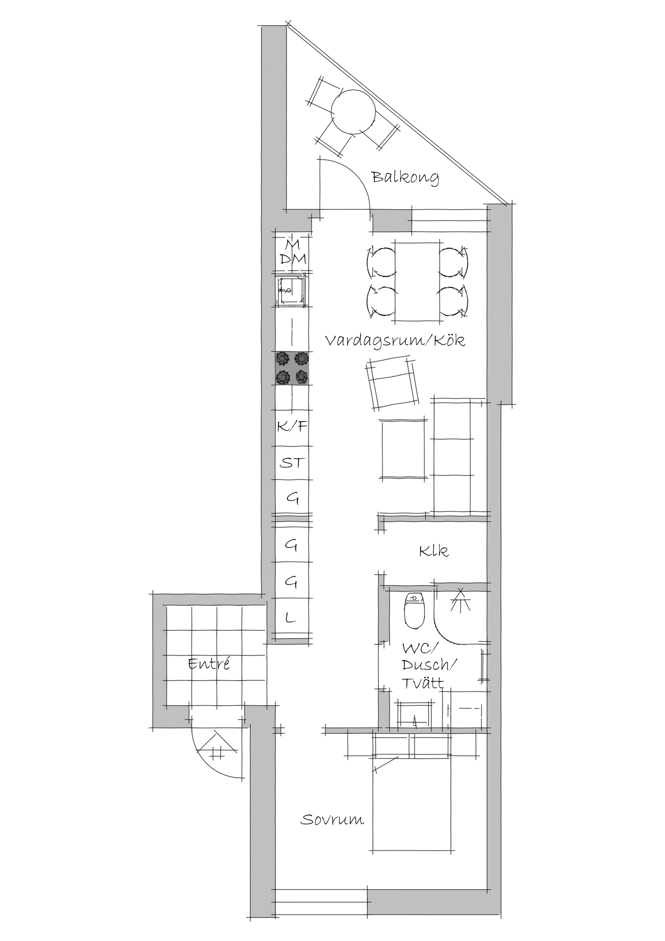
Rumbeskrivning

HALL - Hall med klinkers i grå ton och vita väggar. Plats för avhängning och skohylla.

BADRUM - Helkaklat badrum i grå klinkers och vitt kakel. Badrummet är utrustat med wc, dusch med glasdörrar, handfat med kommod, kombimaskin. Ovan tvätt finns förvaring i vägghängt skåp.

KÖK /VARDAGSRUM - Modernt kök i vitt. Köket är utrustat med ugn, mikrovågsugn, kyl/frys, induktionshäll, och diskmaskin. Trevligt allrum med parkettgolv och vita väggar. Högt i tak (ca 2,8m) med stora fönster som bjuder på både härlig utsikt och trevligt ljusinsläpp. Utrymme för både matplats och soffhörna.

SOVRUM - Plats för dubbelsäng. parkettgolv och vita väggar.

FÖRRÅD - Varje lägenhet har ett förråd i sin bostad.

Läs mer om rummen

Allmän information

Brf Pärlan i Lund består av ett flerbostadshus som stod färdig för inflyttning i 2024 och innefattar 107 bostadsrättslägenheter + 3 hyreslokaler.

Husets gatuadresser är Brunnshögsgatan 48, 50, 52, 54, 56, 58, samt Nobelparken 11 och 13. Lägenheterna är fördelade på 5 våningar, med en mindre 6:e våning som ger extra yta till lägenheter på plan 5. På taket finns solceller för elproduktion.

Föreningen har en bilpool för medlemmarna. Föreningen har även tecknat kollektivt bostadsrättstillägg.

På innergården finns parkering för cyklar, en mindre lekyta samt nedkast till sopsug, vilken drivs av Lunds kommuns renhållningsbolag. Cykelförråd finns. På entréplan finns en övernattningslägenhet samt ett hobbyrum för medlemmarna att nyttja. Övernattningslägenheten kostar 300kr/dygn att hyra.

Brf Pärlan är belägen i Brunnshögs västra del med direkt intilliggande hållplats för spårvagnen, vilket ger mycket goda kommunikationer till centrala Lund. Du tar dig smidigt till till Lund C på under tio minuter och till LTH på bara 6 minuter, vilket gör det perfekt både för pendling och stadsliv. Direkt granne med föreningen är den gröna och nyanlagda Nobelparken, ett fint parkstråk för promenader, lek och grönska. I området finns även Hemköp, restauranger och gym. Området är under utveckling och tilltalar en bred målgrupp pga arbetstillfällen på Ideon och ESS samt studenter som vill ha moderna bostäder i nära anslutning till universitetet.

Enligt föreningens stadgar har de rätt att ta ut en överlåtelseavgift om högst 2,5% av prisbasbeloppet och en pantsättningsavift om högst 1% av prisbasbeloppet. Detta betalas av köparen.

Läs mer

Övrigt

Köparen uppmanas att om det är av stor vikt för honom/henne, kontrollera bostadens boarea före köpet som ett led i sin undersökningsplikt.

Vi samarbetar med Handelsbanken i denna överlåtelse
Kontakta gärna någon av nedanstående bolånerådgivare för finansieringsförslag:
Handelsbanken – Lund City, Johan Lundquist, 046-15 54 30
Handelsbanken – Lund Ideon, Johanna Wictorin, 046-15 95 99

Läs mer
Fakta
Byggnadstyp
Bostadsrätt
Område
Brunnshög
Gatuadress
Brunnshögsgatan 56
Postnummer, ort
22482 Lund
Lägenhetsnummer
56-1409
Boarea(BOA)
45 m²
Boareauppgifter enligt
Bostadsrättsföreningen
Antal rum
2
Andelstal
0,7169
Andelstal kommentar
Indirekt nettoskuldsättning: 727480 kr Kommentar till nettoskuldsättningen: Posten "Övriga fordringar" har inte kunnat utredas huruvida detta är att beakta som en räntebärande fordran eller ej. Beloppet har därför inte beaktats vid uträkningen av den indirekta nettoskuldsättningen på bostaden. Underlag hämtat från Årsredovisning 2024.
Överlåtelseavgift betalas av
Köpare

Kostnader

Månadsavgift
2 992 kr/mån
Beskrivning av kostnader som ingår i avgiften
Inkl. värme, renhållning, bostadsrättstillägg
Beskrivning Månadsavgift
Obligatoriskt tillägg för bredband om 179 kr/mån samt fast avgift för VA om 92 kr/mån. Lägenhetsinnehavaren debiteras för faktisk förbrukning avseende hushållsel, kall- och varmvatten.
Boendekalkyl
Välkommen att kontakta ansvarig fastighetsmäklare om du vill ha hjälp med att upprätta en boendekostnadskalkyl.

Parkering

Parkeringsbeskrivning
Parkering sker i gemensamt P-hus. Parkeringar hyrs av LKPAB, det finns totalt 52 parkeringar reserverade till fastigheten.

Bostadsrätt

Namn på Brf
Brf Pärlan i Lund
Markägare
Föreningen äger marken

Byggnad

Byggår
2024
Hiss finns
Ja

Energideklaration

Du använder en föråldrad webbläsare. Alla funktioner fungerar inte i din webbläsare. Var vänlig uppgradera din webbläsare för att förbättra din upplevelse och öka din säkerhet.